Prodej RD 2+kk, 75 m2/ 524 m2, obec Košík, okr. Nymburk

Ev. číslo
000289
Typ nemovitosti
Dům
Podtyp nemovitosti
samostatný
Dispozice
2+kk
Typ zakázky
Prodej
Stav zakázky
Zrealizováno
Lokalita
Košík
Cena
3 298 000 Kč

Michal Toman

Mobil:
777 732 237
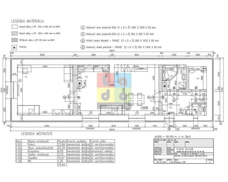
PRODÁNO. Nabízíme Vám k prodeji samostatně stojící rodinný dům 2+kk, 75 m2 s pozemkem o celkové výměře 524 m2 v obci Košík, okr. Nymburk. Pozemek je mírně svažitý. Na pozemku vlastní studna ( momentálně je v řešení přípojka obecní vody) , odpad do septiku, elektřina 220/380. V roce 2015/2016 proběhla rekonstrukce celé střechy, nové latě, fólie, část trámů výměna, nová krytina a podbití. Možnost půdní vestavby v rozsahu celé půdy, cca 75 m2. Dále zateplení celého domu, 5 cm polystyren, stropy sádrokarton. Topení kamna na tuhá paliva, ohřev teplé vody bojler. Parkování na pozemku 12 auta. Pro více informací volejte svého makléře.
Vlastnictví
osobní
Plocha zastavěná
105 m2
Plocha obytná
75 m2
Plocha nebytová
77 m2
Plocha parcely
524 m2
Plocha užitná
75 m2
Konstrukce
smíšená
Stav nemovitosti
dobrý
Nadzemních podlaží
1
Plyn
není
Kanalizace
septik
Voda
vlastní studna
Vytápění
lokální palivové
Balkon
Ne
Lodžie
Ne
Terasa
Ne
Rozvod PC sítě
Ne
Sklep
Ne
Výtah
Ne
Zahrada
Ano
Plocha zahrady
419 m2
Dopravní dostupnost
auto, MHD
Parkování
u domu
Zařízeno
částečně zařízeno

Zájem o prohlídku, více informací

 

pravidly poskytnutí osobních údajů