Pronájem bytu 2+kk, 54m2, Praha 9 Kyje

Ev. číslo
000385
Typ nemovitosti
Byt
Dispozice
2+kk
Typ zakázky
Pronájem
Stav zakázky
Aktivní
Lokalita
Slévačská, Praha 14
Cena
21 000 Kč/měs

Michal Toman

Mobil:
777 732 237
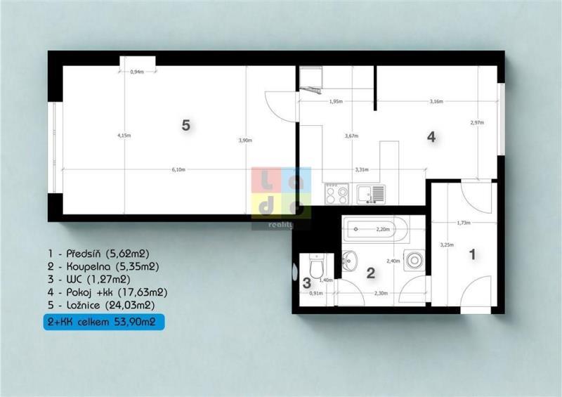
Nabízíme Vám k pronájmu byt 2+kk, 54 m2, v obci Praha 9 Hloubětín, ul. Slévačská. Bytová jednotka se nachází v 1. patře bytového domu s výtahem. Dispozice bytu: předsíň 5,62 m2, obývací pokoj s kuchyňským koutem 17,63 m2, ložnice 24,03 m2, koupelna 5,35 m2 a WC 1,27 m2. Celková výměra bytu činí 53,90 m2. Okna plastová, podlahy dlažba, plovoucí a vinyl. Byt je kompletně vybaven. Možnost venkovního stání pro jeden vůz. Volný od 01.04.2026. Pro více informací volejte svého makléře.
Vlastnictví
osobní
Plocha obytná
54 m2
Plocha užitná
54 m2
Konstrukce
cihla
Stav nemovitosti
velmi dobrý
Patro
1.patro
Nadzemních podlaží
4
Plyn
zaveden
Kanalizace
městská
Voda
vodovod
Vytápění
lokální plynové
Balkon
Ne
Plocha balkonu
3 m2
Lodžie
Ne
Terasa
Ne
Rozvod PC sítě
Ne
Sklep
Ne
Plocha sklepa
1 m2
Výtah
Ano
Zahrada
Ne
Bytové jádro
zděné
Dopravní dostupnost
auto, vlak, dalnice, metro, MHD, II.třída, I.třída
Parkování
u domu
Zařízeno
zařízeno

Zájem o prohlídku, více informací

 

pravidly poskytnutí osobních údajů