Lysá nad Labem, pronájem bytu 3+kk, ul. Na Písku, okr.Nymburk

Ev. číslo
000295
Typ nemovitosti
Byt
Dispozice
3+kk
Typ zakázky
Pronájem
Stav zakázky
Zrealizováno
Lokalita
Na Písku, Lysá nad Labem
Cena
12 000 Kč/měs

Michal Toman

Mobil:
777 732 237
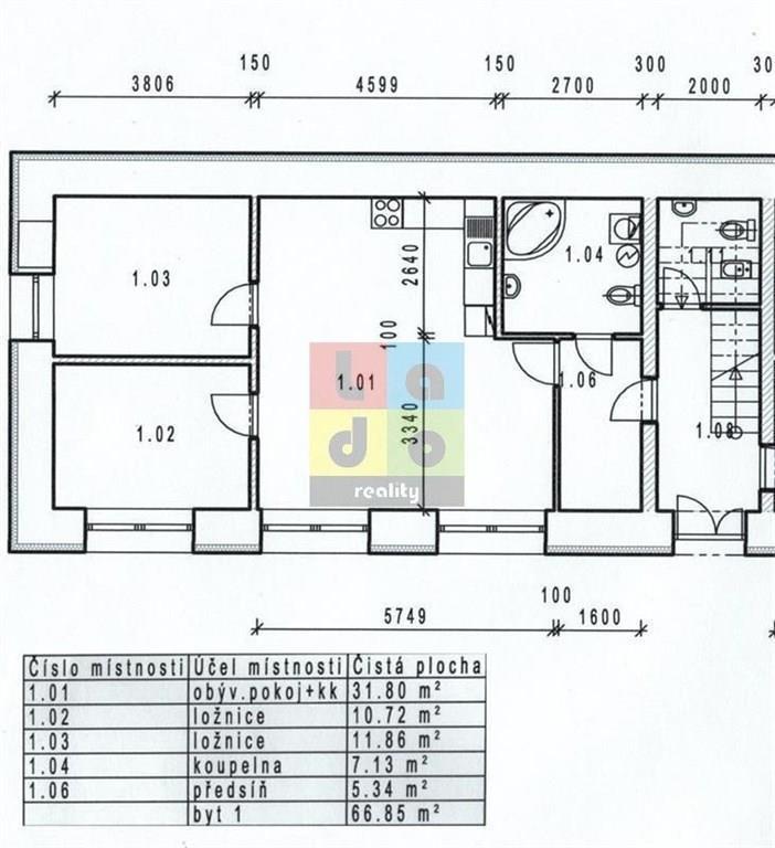
PRONAJATO. Nabízíme Vám k pronájmu bytu 3+kk, 66 m2 v Lysé nad Labem, okr. Nymburk. Byt i dům je po kompletní rekonstrukci 2018/2019, nová plastová okna, zateplená fasáda(PENB -B), nová elektřina, nové zděné jádro, nové WC, koupelna se sprchovým koutem, nová kuchyňská linka. Byt se nachází v přízemí cihlového domu, kousek od centra města. Okna plastová, podlahy dlažba a vinyl. Vytápění elektrickým kotlem, ohřev teplé vody bojlerem. Byt vybaven kuchyňskou linkou s elektrickým sporákem a digestoří. Parkování u domu. Ve městě veškerá občanská vybavenost. Volný ihned. Nájem 12.000,-Kč,+ 500,-Kč záloha na vodu, +přepis elektřiny na nájemce, jistota15.000,-Kč a provize RK 15.000,-Kč.
Vlastnictví
osobní
Plocha obytná
67 m2
Plocha užitná
67 m2
Konstrukce
cihla
Stav nemovitosti
po rekonstrukci
Orientace
Západ, Jih
Patro
přízemí
Nadzemních podlaží
2
Plyn
není
Elektřina na pozemku
není
Voda
vodovod
Vytápění
lokální elektrické
Balkon
Ne
Lodžie
Ne
Terasa
Ne
Rozvod PC sítě
Ne
Sklep
Ne
Výtah
Ne
Zahrada
Ne
Bytové jádro
zděné
Dopravní dostupnost
MHD, dalnice, II.třída, I.třída, vlak, příměstská doprava, auto
Parkování
venkovní stání
Zařízeno
částečně zařízeno

Zájem o prohlídku, více informací

 

pravidly poskytnutí osobních údajů